当サイトを快適にご利用いただくには、ブラウザでJavaScriptを有効にしてください。
お電話でのお問い合わせは「レジデントファースト(株)」までお気軽にお問い合わせください。
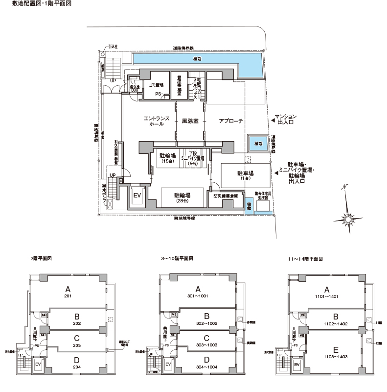
※図面と現況に相違がある場合は現況優先となります。