ルフォンプログレ本郷三丁目 ルフォンプログレ本郷三丁目

Top
Room plan
Equipment
Access/location
Gallery
Outline
Map
空室情報
パンフレットPDF
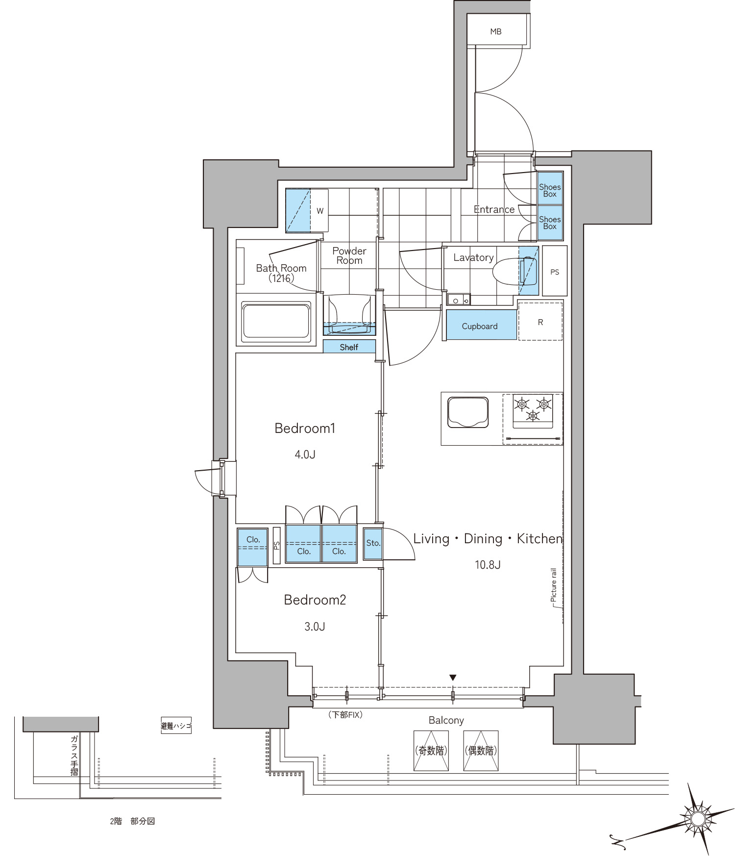
ATYPE 2LDK 専有面積 42.61m²
Aタイプ
一覧へ戻る
Top
Room plan
Equipment
Access/location
Gallery
Outline
Map
サンケイビルの賃貸レジデンス
お電話でのお問い合わせは
050ー3177ー4359
[事業主]
サンケイビル
[貸主]
東急住宅リース株式会社
Copyright(C) THE SANKEI BUILDING Co., Ltd. All Rights Reserved.