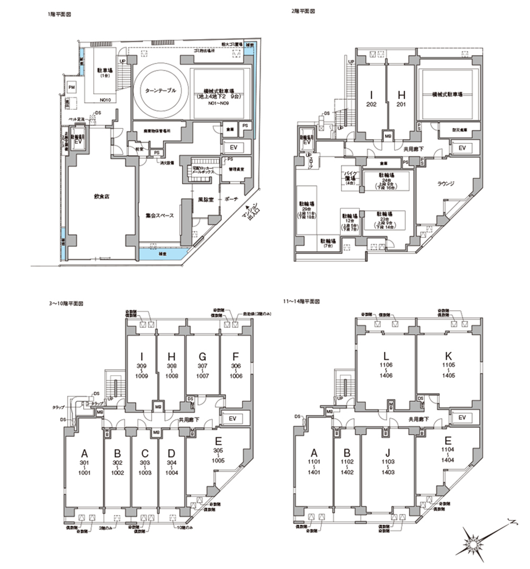
1R BTYPE 1R 専有面積 25.40㎡ 1K CTYPE 1K 専有面積 25.30㎡ DTYPE 1K 専有面積 25.70㎡ HTYPE 1K 専有面積 25.38㎡ 1DK FTYPE 1DK 専有面積 27.87㎡ GTYPE 1DK 専有面積 25.46㎡ ITYPE 1DK 専有面積 27.90㎡ 1LDK ATYPE 1LDK 専有面積 40.56㎡ ETYPE 1LDK 専有面積 40.78㎡ 2LDK JTYPE 2LDK 専有面積 54.07㎡ KTYPE 2LDK 専有面積 56.12㎡ LTYPE 2LDK 専有面積 55.40㎡